Gemeinderat

Schwetzinger Gemeinderat diskutiert über Bebauung von Gärtnerei-Areal

Zwei Wohnbauprojekte im erweiterten Innenstadtbereich standen auf der Tagesordnung des Gemeinderates. Während das eine bereits genehmigt wurde, steckt das andere noch in einem längeren Prozess.

Von 
Andreas Lin
Lesedauer: 

Schwetzingen. Zwei geplante Wohnbauprojekte im erweiterten Innenstadtbereich standen erwartungsgemäß im Mittelpunkt der öffentlichen Gemeinderatssitzung am Mittwochabend. Während bei dem einen Vorhaben auf dem Gelände des ehemaligen Fleischgroßhandels an er Berliner Straße quasi der Deckel draufgemacht wurde, ist es bei dem anderen – auf dem Areal der früheren Gärtnerei Wörn zwischen Linden- und Leopoldstraße – längst noch nicht so weit. Der vom Gemeinderat mehrheitlich gefällte Beschluss über die Aufstellung des vorhabenbezogenen Bebauungsplans sowie die Beteiligung der Öffentlichkeit und der Behörden ist der Auftakt für einen vermutlich längeren Prozess. Das verdeutlichten auch die Fragen einiger Nachbarn zu Sitzungsbeginn.

„Wir gehen jetzt ins Verfahren und das ist grundsätzlich offen“, erklärte Oberbürgermeister Dr. René Pöltl. Es könne also sein, dass sich der Bebauungsplan noch verändert oder sogar abgelehnt wird, sagte er auf Nachfrage von SPD-Fraktionssprecher Robin Pitsch. Der OB ermunterte die Anwohner, das Gespräch mit der Stadt zu suchen und ihre Bedenken einzubringen.

Bebauungsplan der ehemaligen Gärtnerei Wörn: Grüne Lunge oder Wohnraum?

Das taten zwei Sitzungsbesucherinnen: Eine erkundigte sich, wie das Bauprojekt denn mit dem 2020 vom Gemeinderat verabschiedeten Teilrahmenplan „Grüne Lungen“ zusammenpasse. Denn mit diesem Konzept solle ja – so der Beschluss von damals – der Erhalt von noch vorhandenen Grün-, Garten- und Freiflächen im Innenstadtbereich gewährleistet werden. „Das wird alles im Zuge des Bebauungsplans abgearbeitet“, erklärte Pöltl. Das gelte auch für alle Belange des Naturschutzes, den eine andere Anwohnerin ansprach: „Das ist zwingend zu berücksichtigen.“ Ein erstes artenschutzrechtliches Gutachten habe allerdings ergeben, dass zum Beispiel auf dem Areal weder Fledermäuse noch Zauneidechse leben würden. Das bezweifelte eine Nachbarin entschieden. Der Oberbürgermeister gab aber insgesamt auch zu bedenken: „Wir wollen Wohnraum schaffen und das ist auch dringend notwendig.“

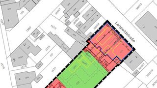
Um dieses Areal zwischen Lindenstraße (l.) und Leopoldstraße (oben) geht es. Früher war dort die Gärtnerei Wörn. © Stadt

Das wird nach dem einstimmigen Beschluss vom Mittwochabend definitiv im Bereich des Bebauungsplans „Maximilianstraße, Berliner Straße, Antonisstraße, Karlstraße“ passieren – dort, wo bis 2015 ein Fleischgroßhändler ansässig war. Ein privater Investor will dort zwei- und dreigeschossige Gebäude mit rund 25 Mietwohnungen erstellen.

Mehr zum Thema

Gemeinderat

Gibt es grünes Licht für Wohnbebauung in Schwetzingen?

Veröffentlicht
Von
Andreas Lin
Mehr erfahren
Sanierung und Neugestaltung

Rothacker’sches Haus: „Das wird ein tolles Ding für Schwetzingen“

Veröffentlicht
Von
Andreas Lin
Mehr erfahren
Gemeinderat

Grünes Licht fürs Rothacker’sche Haus in Schwetzingen

Veröffentlicht
Von
Andreas Lin
Mehr erfahren

Ob das der Investor in dem knapp 2000 Quadratmeter großen „Quartier XXXIII, Lindenstraße-Leopoldstraße“ auch vorhat oder ob es Eigentumswohnungen werden, konnte OB Pöltl nicht sagen.

Susanne Hierschbiel erklärt Ablehnung

Für Dr. Susanne Hierschbiel (Bündnis 90/Die Grünen) ist die Entwicklung in diesem Quartier generell kein Ruhmesblatt. „Leider wurden 2019 durch die Zustimmung des Gemeinderates zum Bebauungsplan im Bereich zwischen Mannheimer und Leopoldstraße die falschen Weichen gestellt“, sagte sie in ihrer Stellungnahme. Denn die jetzt geplante Bebauung des Grundstücks der ehemaligen Gärtnerei Wöm mit einem Mehrfamilienhaus in zweiter Reihe und einem weiteren an der Leopoldstraße sei so nur möglich, weil das Gelände 2019 nicht als Gartengrundstück ausgewiesen worden sei: „Anders als die Nachbargrundstücke, anders als ursprünglich vorgesehen – und anders als 2020 im ,Grüne-Lungen’-Konzept verabschiedet. Das habe ich damals abgelehnt und das lehne ich heute genauso ab“, betonte sie.

Es sei ungerecht gegenüber den Besitzern der Nachbargrundstücke und schlecht für das Konzept „Grüne Lungen“. Der jetzt vorliegende grundsätzlich ansprechende Entwurf ändere das nicht.

Redaktion Stv. Redaktionsleiter + Lokalsportchef Schwetzinger Zeitung

Copyright © 2025 Schwetzinger Zeitung

VG WORT Zählmarke